1633 Rolling Heights Lane

1633 Rolling Heights Lane

Stunning Upgraded Two Story Home with 5 Beds, 4.5 Baths & 3-Car Garage in Amazing Walsh!

$679,201

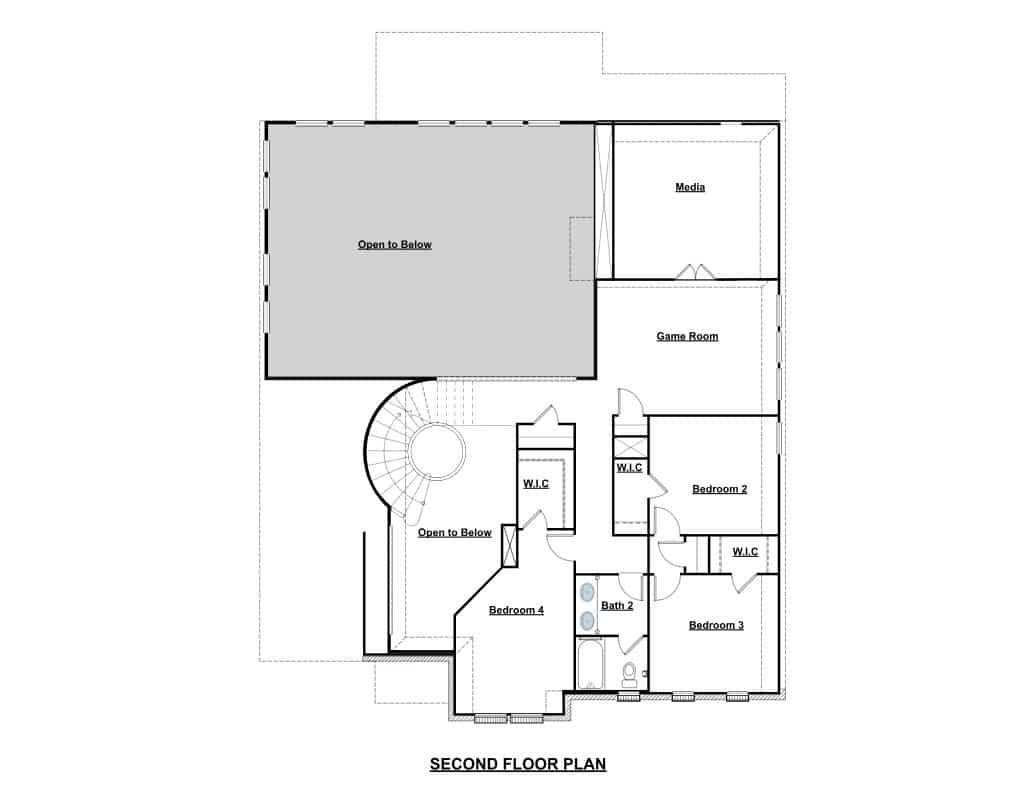
Estimated Completion Late March. From our grand Presidential Series, this stunning 3,679 sf Two-Story home is GFO Home’s highly sought after Harrison Floor Plan- offering 5 Bedrooms, 3.5 Bathrooms, and a spacious 3-car Garage with 2’ ft garage extension, located in the premier Master-Planned and amenity-rich Walsh Community!! On the main floor this home features highlights like upgraded hardwood flooring in the main common areas, a Private Study or Flex Room, a Guest Suite with full ensuite Bathroom, an Open Concept Family Room with soaring 2-story Vaulted Ceilings, 2-Story Stacked Windows, and a stunning 42”in Gas Fireplace. Enjoy the outdoors with a spacious Extended Covered Patio leading out to the Private Backyard and test your skills in the Gourmet Chef’s Kitchen featuring a large Center Island, Walk-in Pantry, and attached Breakfast Room. Relax and unwind in the Luxury Primary Suite and Spa-Inspired Primary Bathroom, with a designer Free-Standing Tub, separate Frameless Glass Walk-In Shower, and Oversized Walk-In Closet. Upstairs, you’ll find the Game Room for endless fun, an added Media Room for the best movie nights, and 3 more Bedrooms with 1 more full Bathroom. You’ll also discover additional functionality and convenience with a Laundry Room and Powder Bathroom directly off the garage entrance. Experience high-end living at its finest with GFO Home’s Harrison floor plan in Fort Worth’s Premier Master-Planned Community – Walsh! Enjoy amazing on-site amenities like a community water park, splash pads, pools, Makerspace, on-site gas station, on-site community market, fitness center, parks, playgrounds, hike & bike trails, and much, much more! Plus, an incredible location near amazing local shopping, dining, and family fun- and just 20 minutes from Downtown Fort Worth & The Stockyards! Zoned to Top-Notch Aledo ISD- Ranked #1 School District in Parker County.

5
BEDROOMS
3.5
BATHROOMS
3,679
SQ.FT.
2
Stories
3
GARAGES

Schools

Aledo ISD
  • Walsh Elementary (Onsite)
  • McAnally Intermediate
  • Aledo Middle School
  • Aledo High School
  • Daniel 9th Grade Campus

Plan Amenities & Living Areas

  • 3-Car Garage
  • Breakfast Area
  • Extended Covered Patio
  • Freestanding Tub
  • Game Room
  • Garage Extension
  • Gas Fireplace
  • Gourmet Kitchen
  • Luxury Primary Bathroom
  • Media Room
  • Private Study/Flex Room
  • Vaulted Ceilings
  • Walk-In Closets
  • Wood Flooring

Community Amenities

  • Acres of Open Green Space
  • Basketball
  • Community Activities
  • Community Center
  • Community Market
  • Fitness Center/Fitness Classes
  • Lap Pools
  • Maker Space
  • On-Site Fire Station Coming Soon
  • On-Site Gas Station
  • Resort Style Pools
  • Splash Pads
  • Tennis
  • Waterpark
  • Yoga

Media Gallery

Visit Our Community Sales Center

2016 Grey Birch Place, Aledo, TX 76008

Sales Office Hours

Monday - Saturday 10 AM - 6 PM & Sunday 12 PM - 6 PM

Sales Manager

Tara Grehl

This field is for validation purposes and should be left unchanged.
All fields are required unless marked optional
This field is hidden when viewing the form
This field is hidden when viewing the form
This field is hidden when viewing the form
This field is hidden when viewing the form
This field is hidden when viewing the form
This field is hidden when viewing the form
Walsh
Fort Worth
The Harrison
1633 Rolling Heights Lane